Общая площадь:
182.20 м2
Жилая площадь:
68.90 м2
Секция
2
Этаж:
24
5 – 24 – 323 квартира

№ 323

1.  Спальня: 15.20 м2
2.  Кухня-столовая: 41.80 м2
3.  Коридор: 10.80 м2
4.  Сан.узел: 3.70 м2
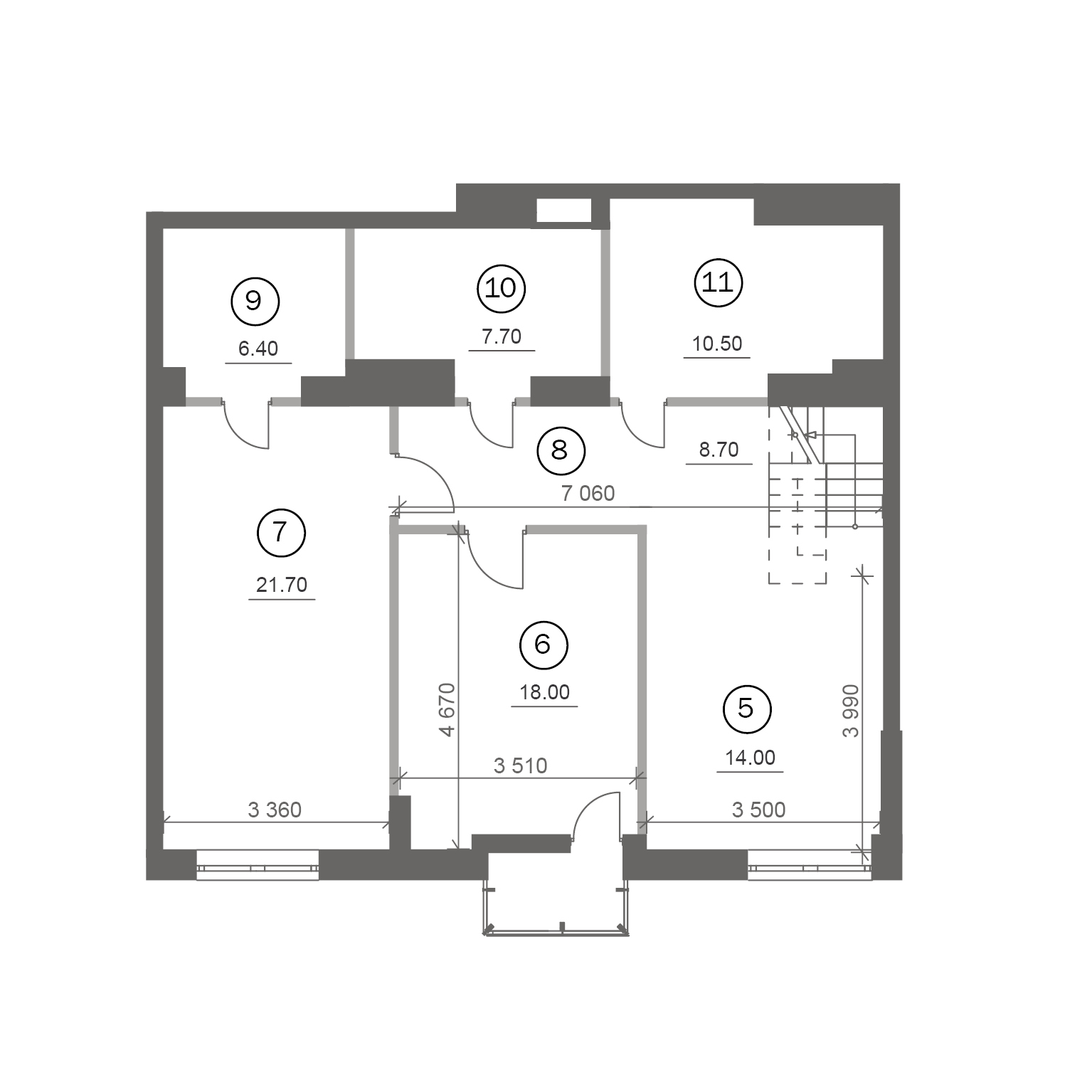
5.  Спальня - 2: 14.00 м2
6.  Спальня - 3: 18.00 м2
7.  Спальня - 4: 21.70 м2
8.  Коридор - 2: 8.70 м2
9.  Сан. узел - 2: 6.40 м2
10.  Сан. узел - 3: 7.70 м2
11.  Гардеробная: 10.50 м2
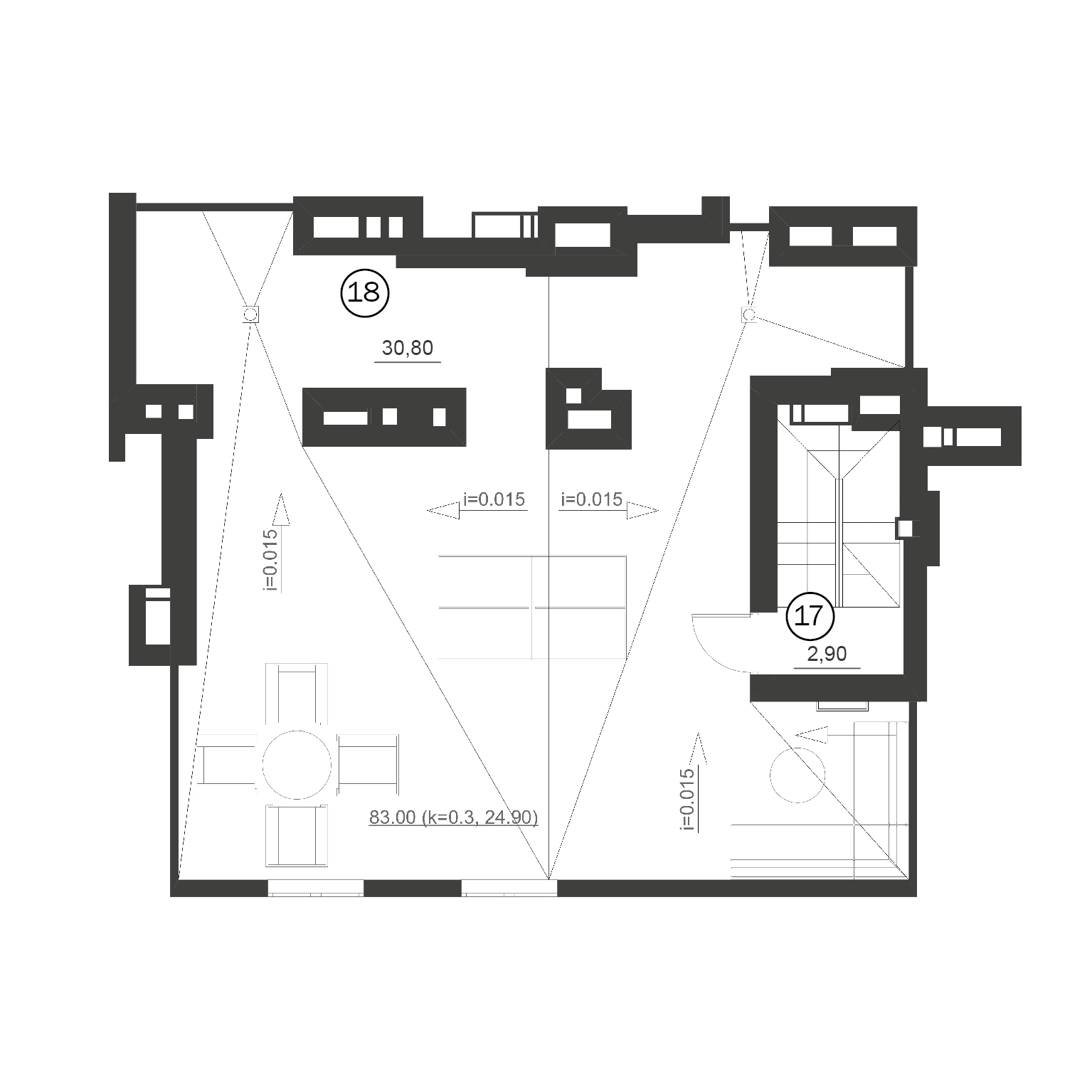
12.  Терраса: 20.80 м2
13.  Выход на террасу: 2.90 м2
Загрузить PDF- файл

Узнать цену

    Надіслати

    Спасибо за Ваше сообщение!

    Наш мэнеджер с Вами свяжется