Общая площадь:
210.4 м2
Жилая площадь:
101.0 м2
Секция
2
Этаж:
24
5 – 24 – 320 квартира

№ 320

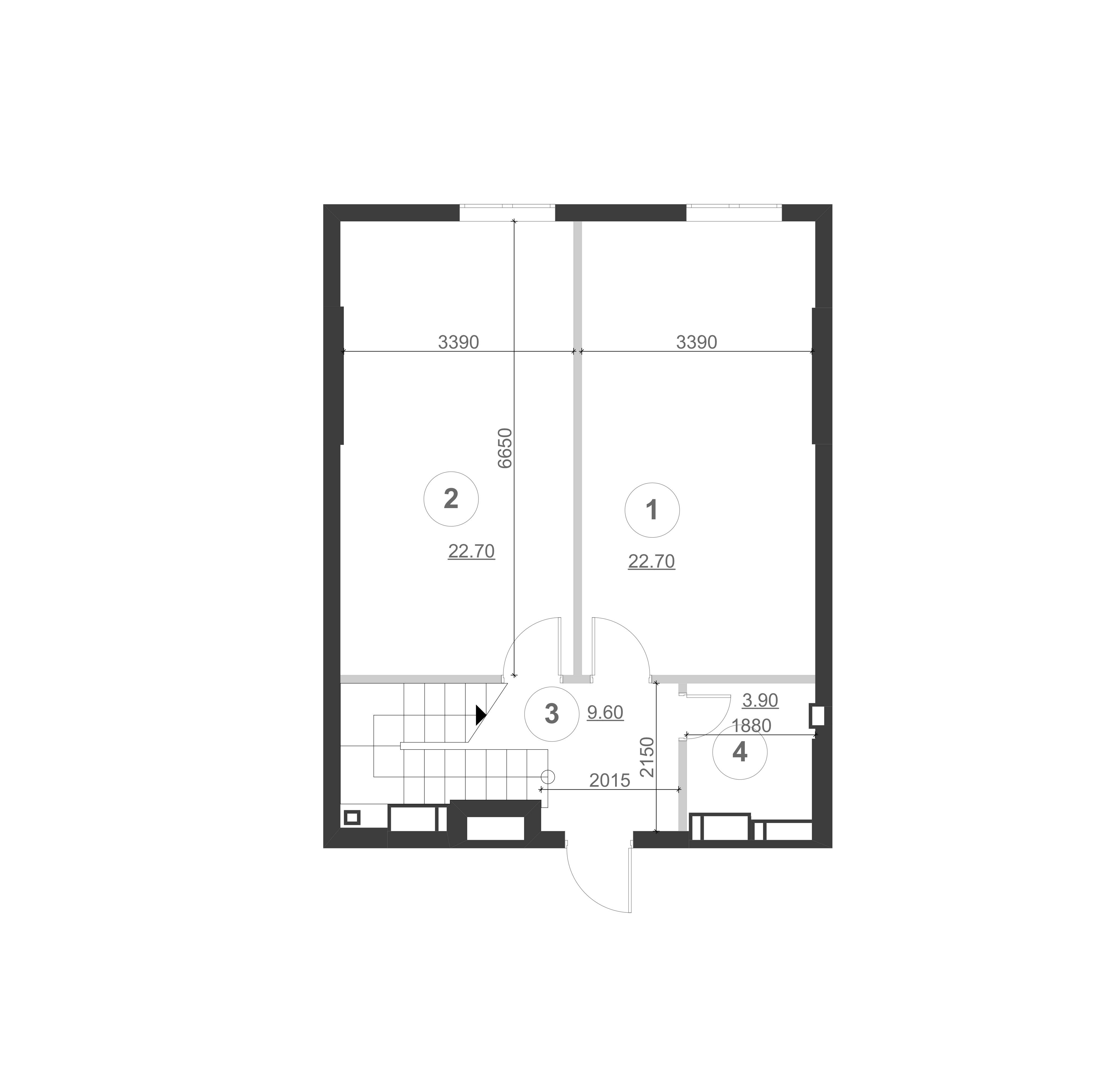
1.  (УКР) Спальня: 22.7 м2
2.  (УКР) Кухня: 22.7 м2
3.  (УКР) Коридор: 9.6 м2
4.  (УКР) Сан. вузол: 3.9 м2
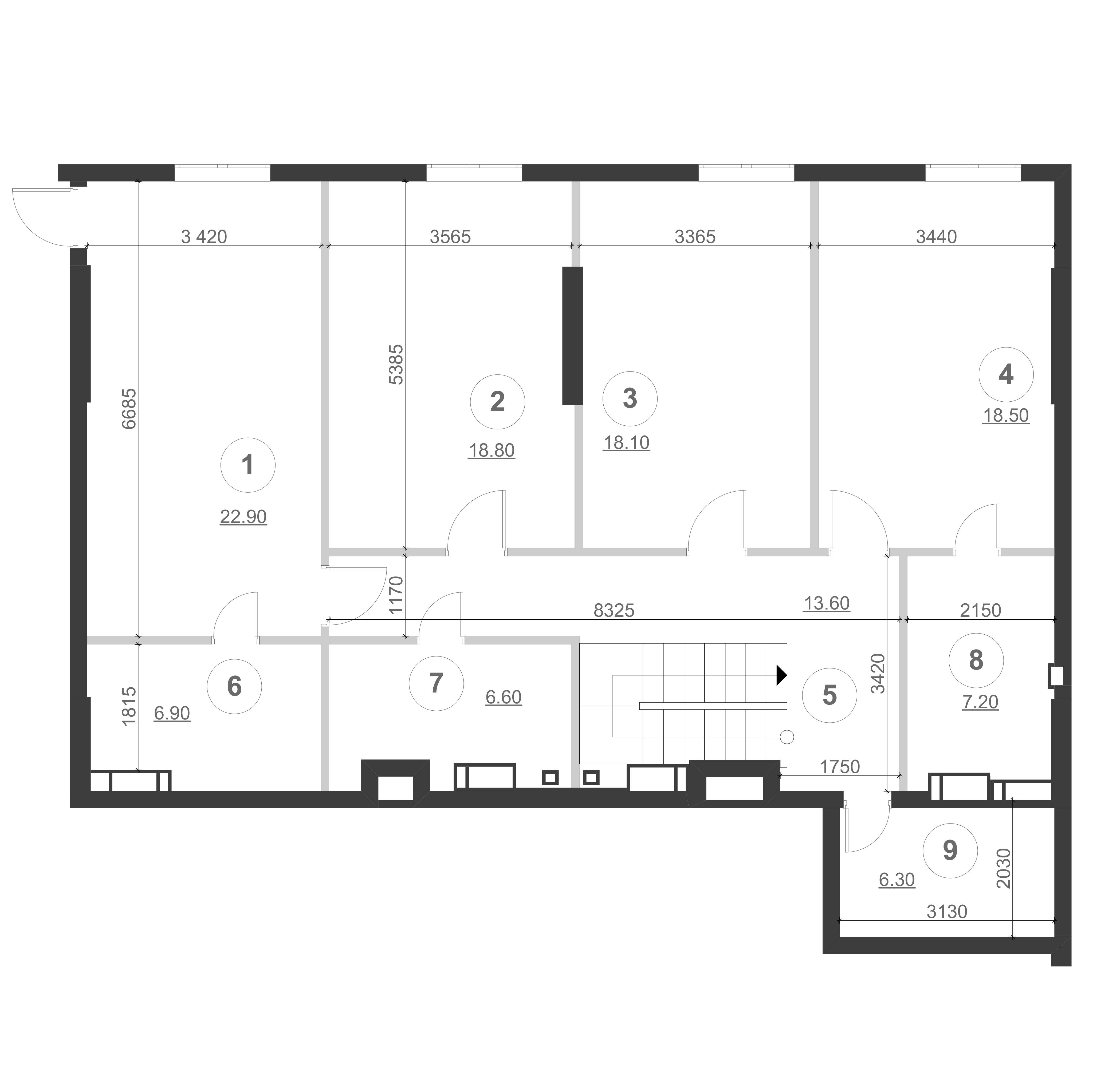
5.  (УКР) Спальня - 2: 22.9 м2
6.  (УКР) Спальня - 3: 18.8 м2
7.  (УКР) Спальня - 4: 18.1 м2
8.  (УКР) Спальня - 5: 18.5 м2
9.  (УКР) Коридор - 2: 13.6 м2
10.  (УКР) Сан. вузол - 2: 6.9 м2
11.  (УКР) Сан. вузол - 3: 6.6 м2
12.  (УКР) Сан. вузол - 4: 7.2 м2
13.  (УКР) Комора: 6.3 м2
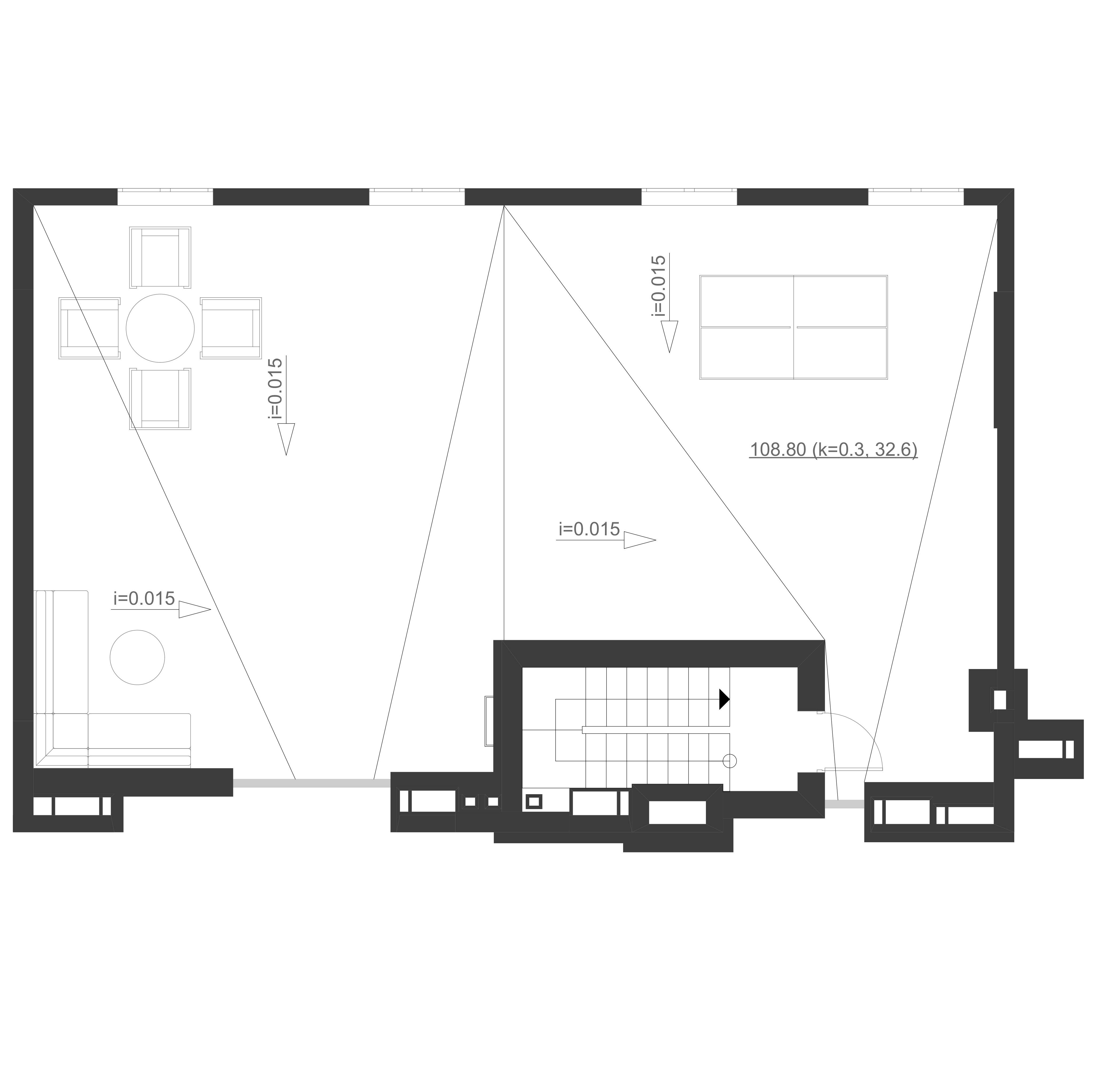
14.  (УКР) Тераса (k=0.3): 32.6 м2
Загрузить PDF- файл

Узнать цену

    Надіслати

    Спасибо за Ваше сообщение!

    Наш мэнеджер с Вами свяжется