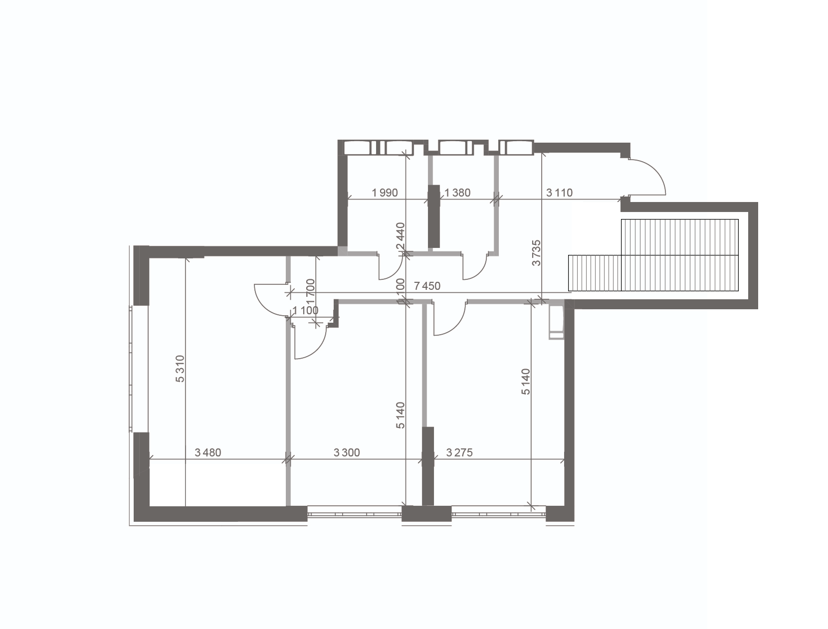
Загальна площа:
117.4 м2
Житлова площа:
38.5 м2
Секція
1
Поверх:
23
S1-2-23-330 квартира

№ 330

1.  Рівень 1: 87.04 м2
2.  Коридор: 23.08 м2
3.  Кухня-вітальня: 17.29 м2
4.  Кімната - 1: 16.53 м2
5.  Кімната - 2: 22 м2
6.  Сан. вузол - 1: 4.78 м2
7.  Сан. вузол - 2: 3.36 м2
8.  Рівень 2: 95.28 м2
9.  Сходи: 1.99 м2
10.  Тераса: 94.19 м2
Завантажити PDF- файл

Дізнатись ціну

    Надіслати

    Дякуємо за Ваше повідомлення

    Наш менеджер зателефонує Вам