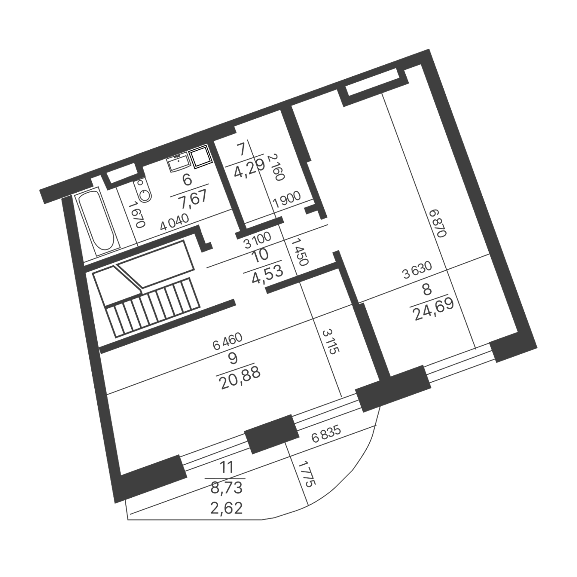
Загальна площа:
148.2 м2
Житлова площа:
61.2 м2
Секція
1
Поверх:
23
S1-4-23-325 квартира

№ 325

1.  Рівень 1: 81.47 м2
2.  Коридор: 19.58 м2
3.  Кімната - 1: 19.59 м2
4.  Санвузол: 3.51 м2
5.  Кімната - 2: 17.72 м2
6.  Кухня-вітальня: 25.07 м2
7.  Рівень 2: 70.79 м2
8.  Житлова площа: 45.57 м2
9.  Санвузол: 7.67 м2
10.  Гардероб: 4.29 м2
11.  Кімната - 1: 24.69 м2
12.  Кімната - 2: 20.88 м2
13.  Коридор: 4.53 м2
14.  Тераса: 8.73 м2
Завантажити PDF- файл

Дізнатись ціну

    Надіслати

    Дякуємо за Ваше повідомлення

    Наш менеджер зателефонує Вам