Загальна площа:
191.2 м2
Житлова площа:
102.9 м2
Секція
1
Поверх:
23
S1-4-23-319 квартира

№ 319

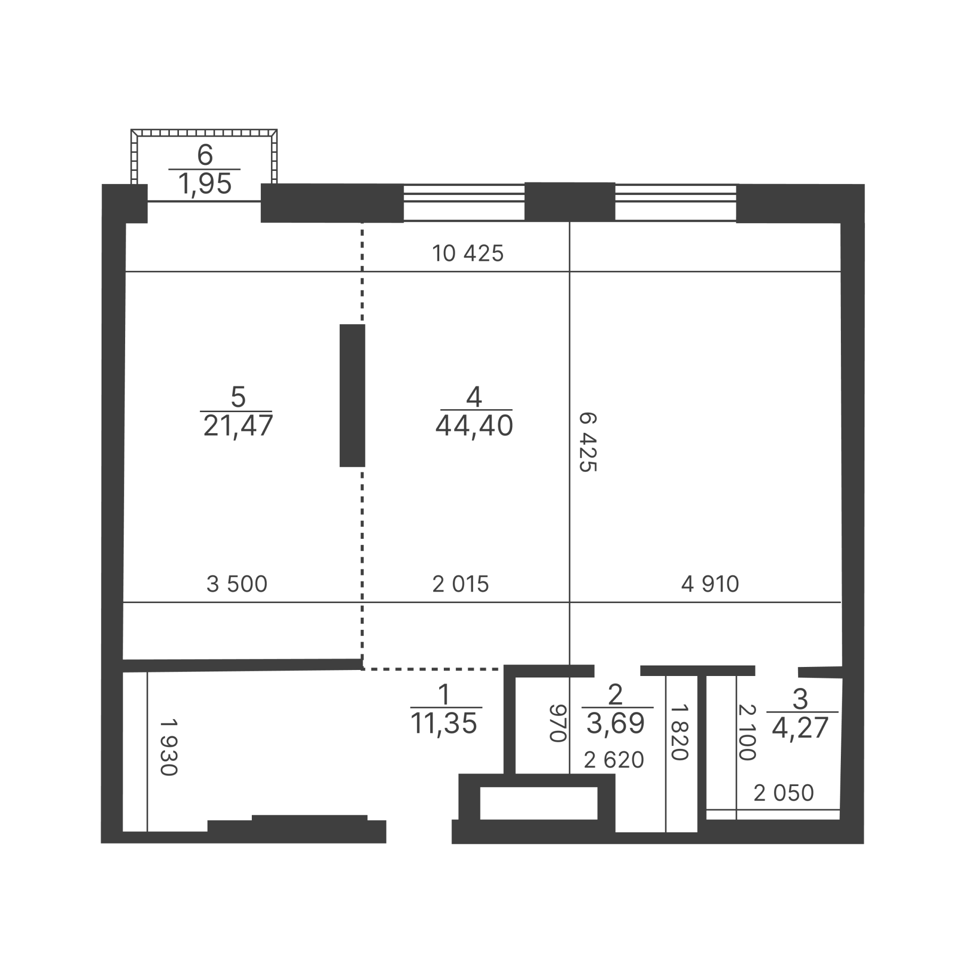
1.  Рівень 1: 87.1 м2
2.  Житлова площа: 44.4 м2
3.  Коридор: 11.35 м2
4.  Санвузол: 3.69 м2
5.  Гардеробна: 4.27 м2
6.  Кімната 1: 44.40 м2
7.  Кухня-вітальня: 21.47 м2
8.  Еркер: 1.95 м2
9.  Рівень 2: 79.68 м2
10.  Житлова площа: 58.54 м2
11.  Коридор: 7.84 м2
12.  Кімната - 1: 18.63 м2
13.  Кімната - 2: 16.41 м2
14.  Кімната - 3: 23.50 м2
15.  Санвузол - 1: 6.67 м2
16.  Санвузол - 2: 4.68 м2
17.  Еркер: 1.95 м2
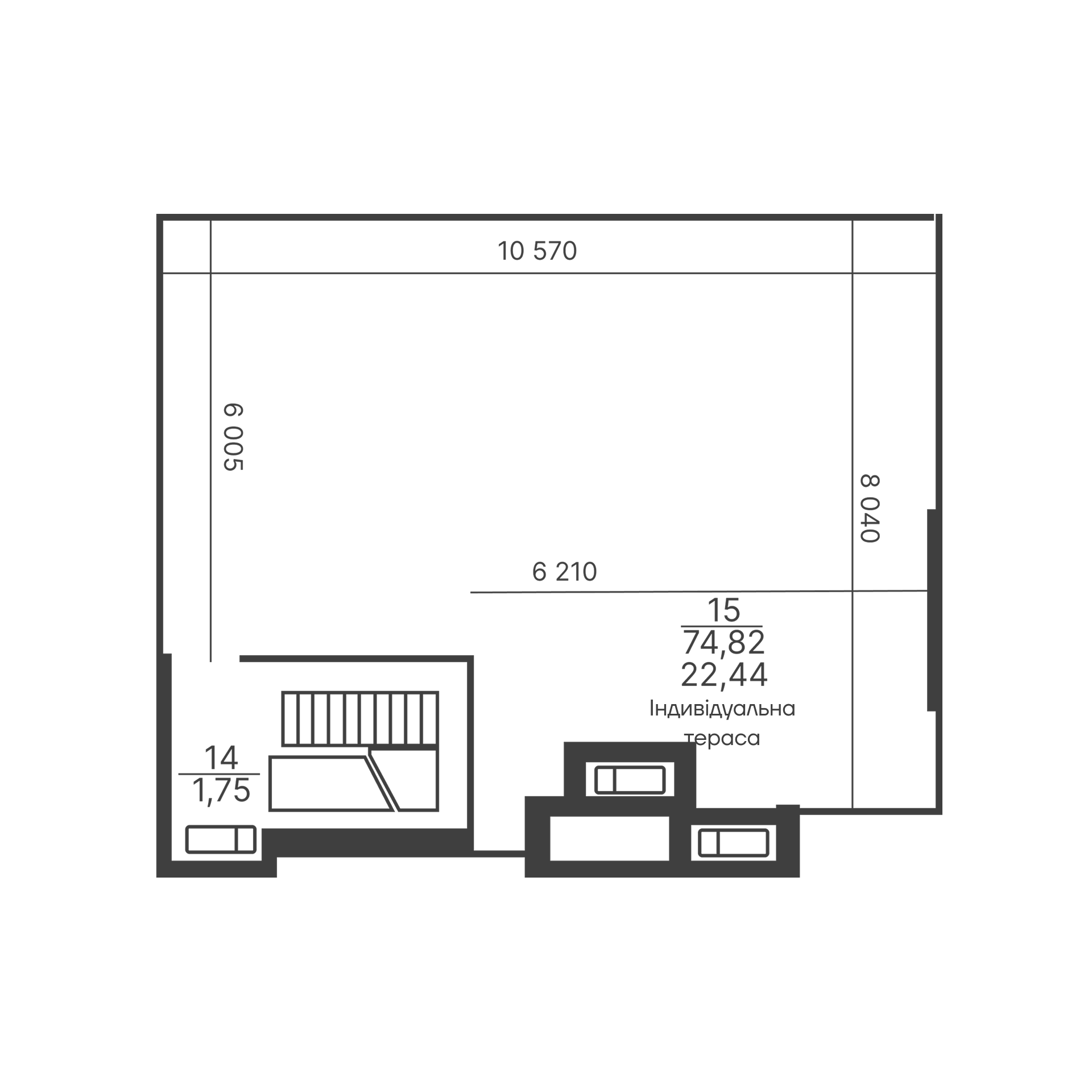
18.  Рівень 3: 76.57 м2
19.  Сходи: 1.75 м2
20.  Тераса: 74.82 м2
Завантажити PDF- файл

Дізнатись ціну

    Надіслати

    Дякуємо за Ваше повідомлення

    Наш менеджер зателефонує Вам