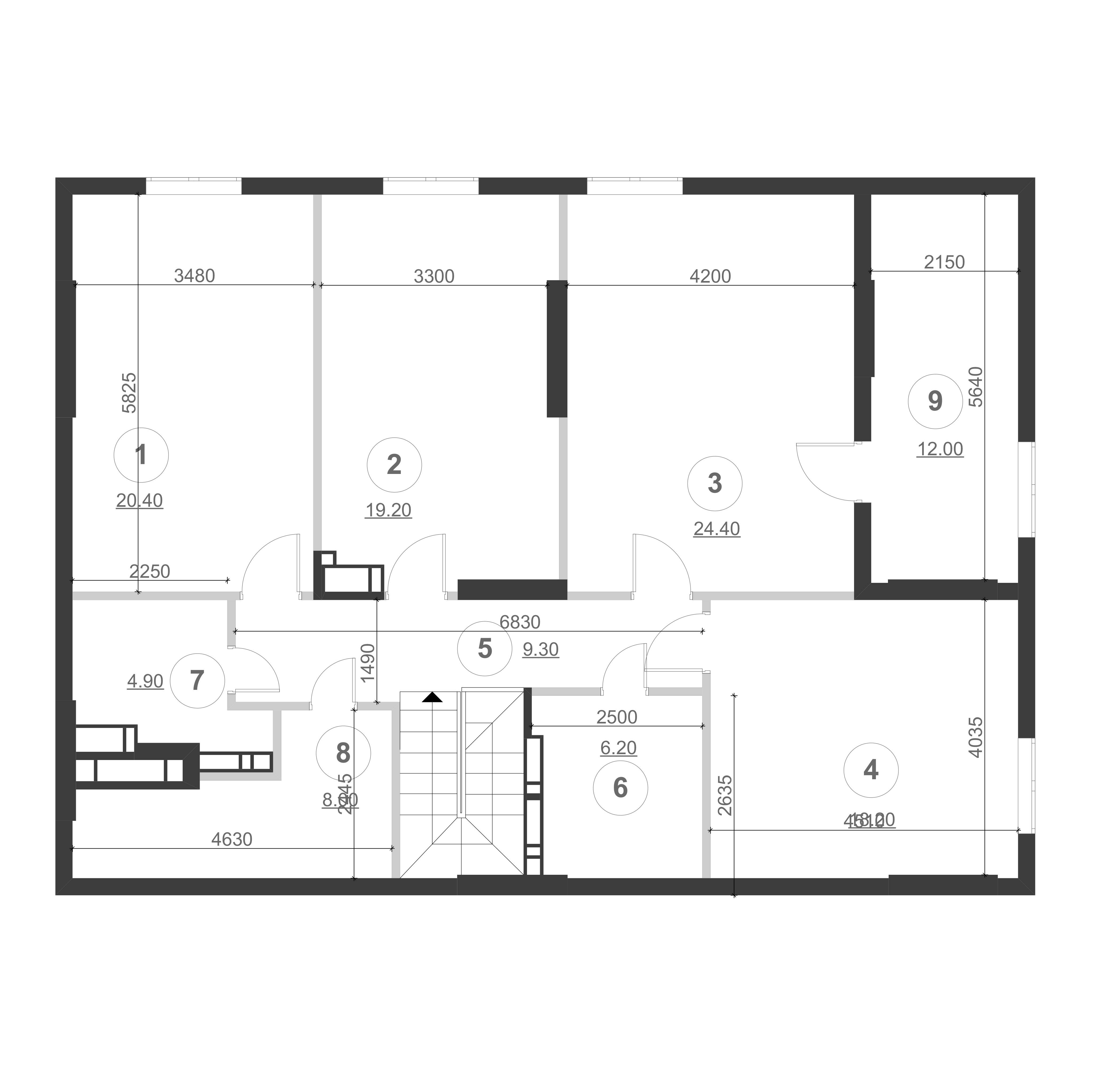
Загальна площа:
285.2 м2
Житлова площа:
144.0 м2
Секція
2
Поверх:
24
7 – 24 – 321 квартира

№ 321

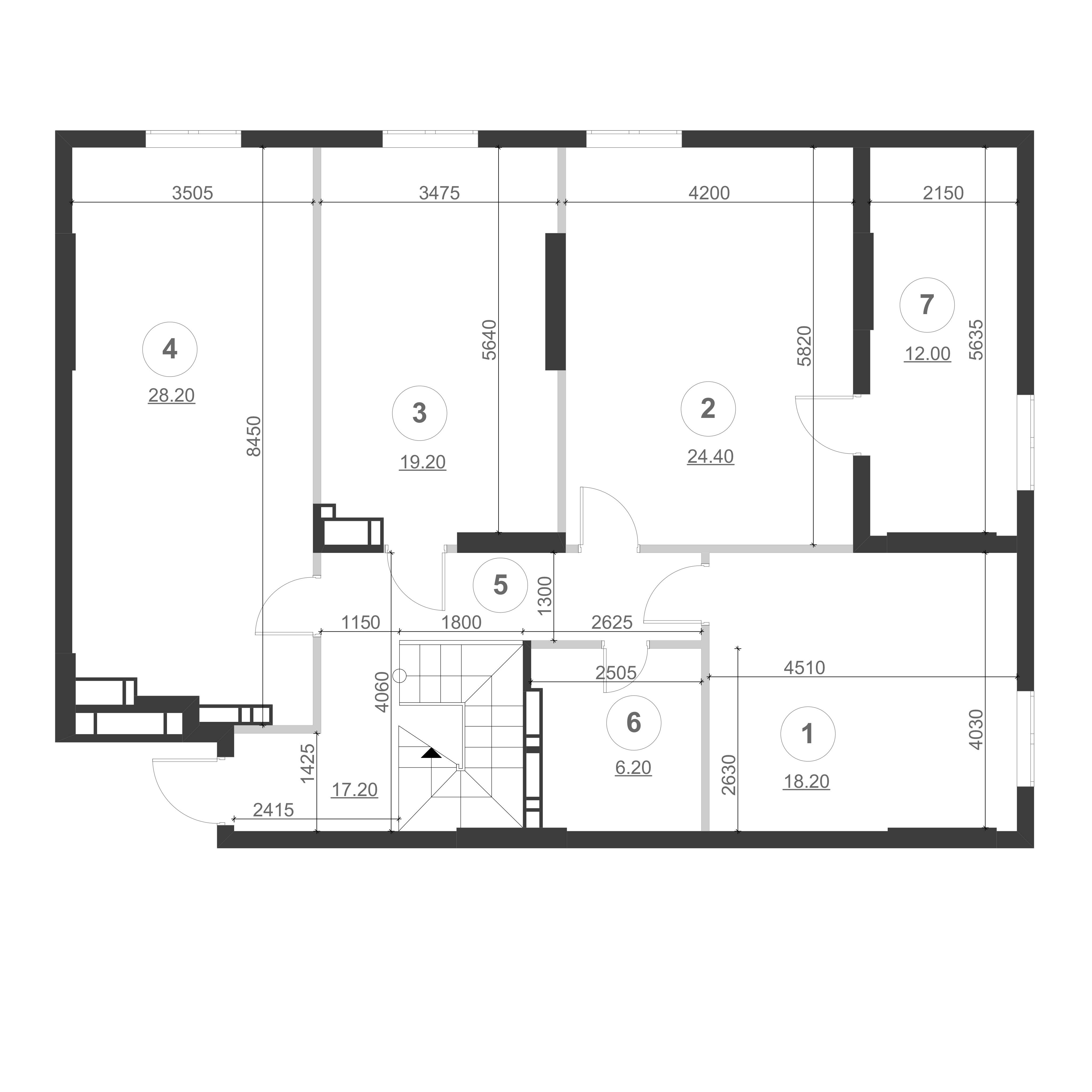
1.  Спальня: 18.2 м2
2.  Спальня - 2: 24.4 м2
3.  Спальня - 3: 19.2 м2
4.  Кухня: 28.2 м2
5.  Коридор: 17.2 м2
6.  Сан. вузол: 6.2 м2
7.  Лоджія: 12 м2
8.  Спальня - 4: 20.4 м2
9.  Спальня - 5: 19.2 м2
10.  Спальня - 6: 24.4 м2
11.  Спальня - 7: 18.2 м2
12.  Коридор: 9.3 м2
13.  Сан. вузол - 4: 6.2 м2
14.  Сан. вузол - 5: 3.9 м2
15.  Комора: 8 м2
16.  Лоджія: 12 м2
17.  Тераса (k=0.3): 37.2 м2
Завантажити PDF- файл

Дізнатись ціну

    Надіслати

    Дякуємо за Ваше повідомлення

    Наш менеджер зателефонує Вам