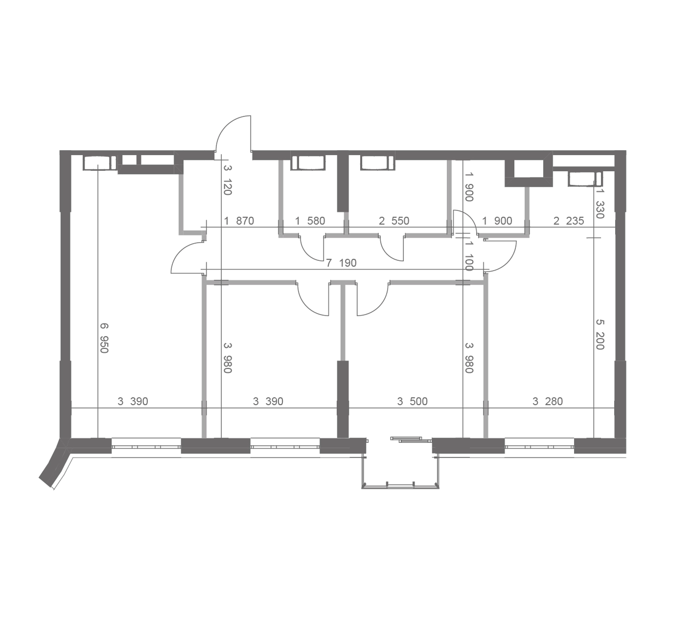
Общая площадь:
96.5 м2
Жилая площадь:
44.4 м2
Секция
1
Этаж:
22
S1-3-22-311 квартира

№ 311

1.  Коридор: 13.44 м2
2.  Сан. узел: 2.16 м2
3.  Сан. узел - 2: 4.45 м2
4.  Гардеробная: 2.83 м2
5.  (УКР) Гардеробна - 2: 4.80 м2
6.  Спальня: 17.57 м2
7.  Спальня - 2: 13.56 м2
8.  Спальня - 3: 13.22 м2
9.  Кухня: 22.52 м2
10.  (УКР) Еркер: 1.95 м2
Загрузить PDF- файл

Узнать цену

    Надіслати

    Спасибо за Ваше сообщение!

    Наш мэнеджер с Вами свяжется