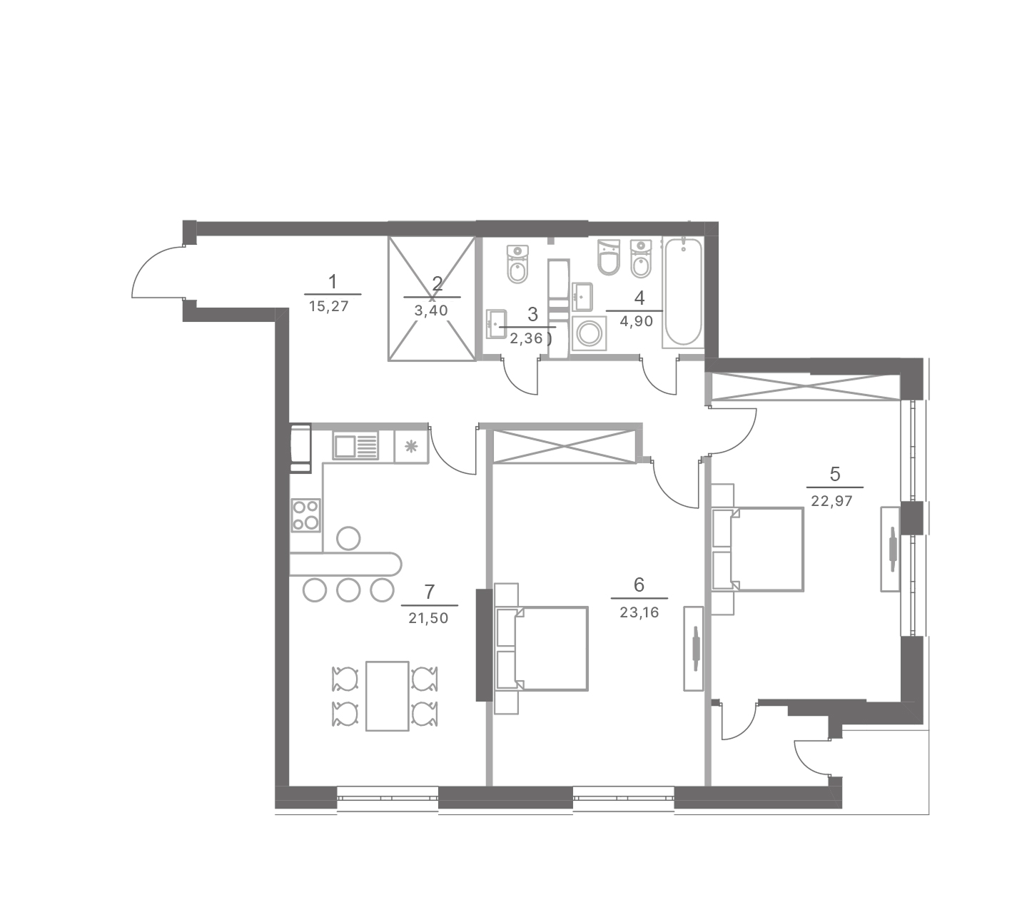
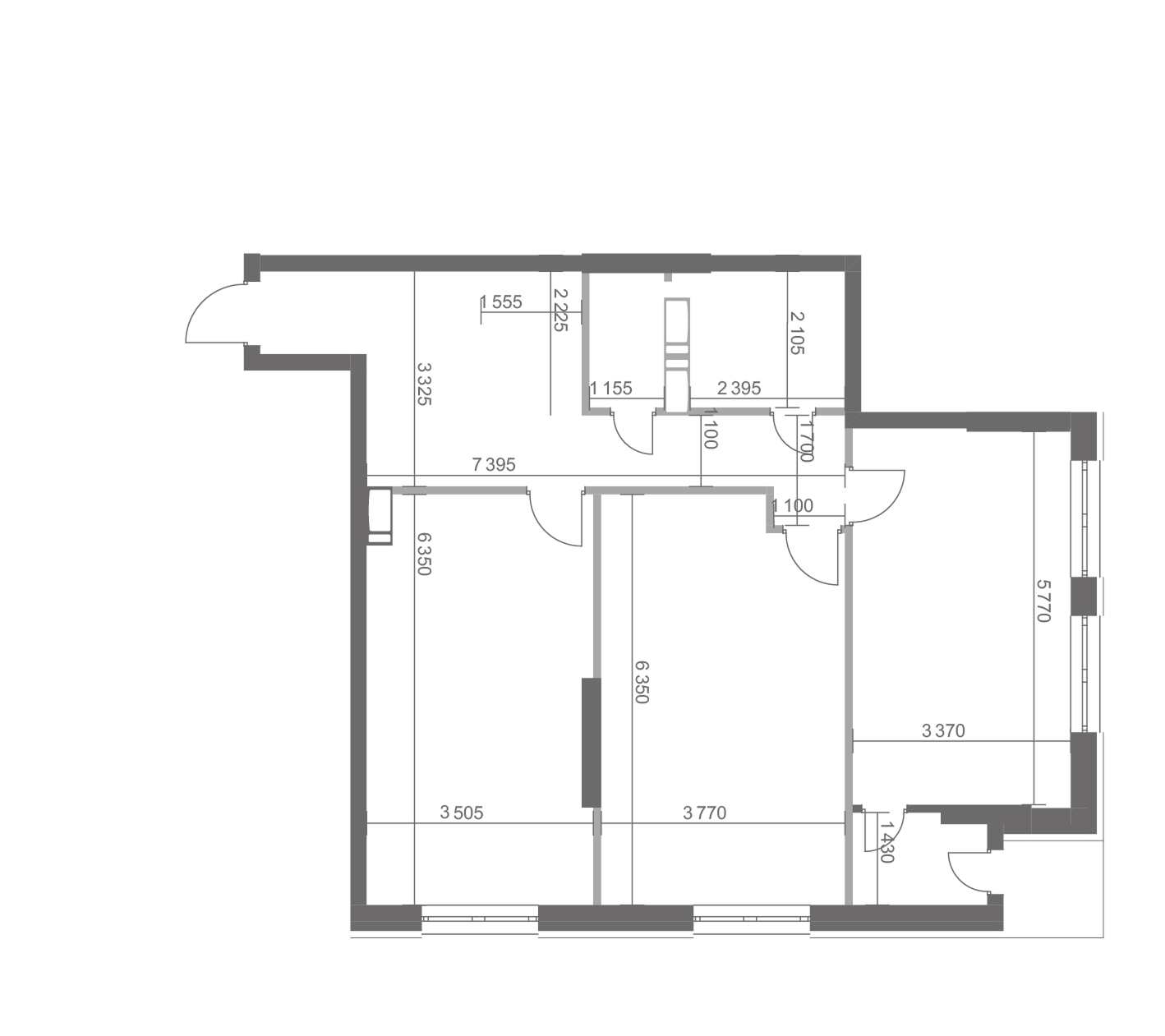
Общая площадь:
93.6 м2
Жилая площадь:
46.2 м2
Секция
1
Этаж:
8
S1-2-8-112 квартира

№ 112

1.  Коридор: 15.27 м2
2.  Гардеробная: 3.4 м2
3.  Сан. узел: 2.36 м2
4.  Сан. узел - 2: 4.9 м2
5.  Спальня: 22.97 м2
6.  Спальня - 2: 23.16 м2
7.  Кухня: 21.50 м2
Загрузить PDF- файл

Узнать цену

    Надіслати

    Спасибо за Ваше сообщение!

    Наш мэнеджер с Вами свяжется