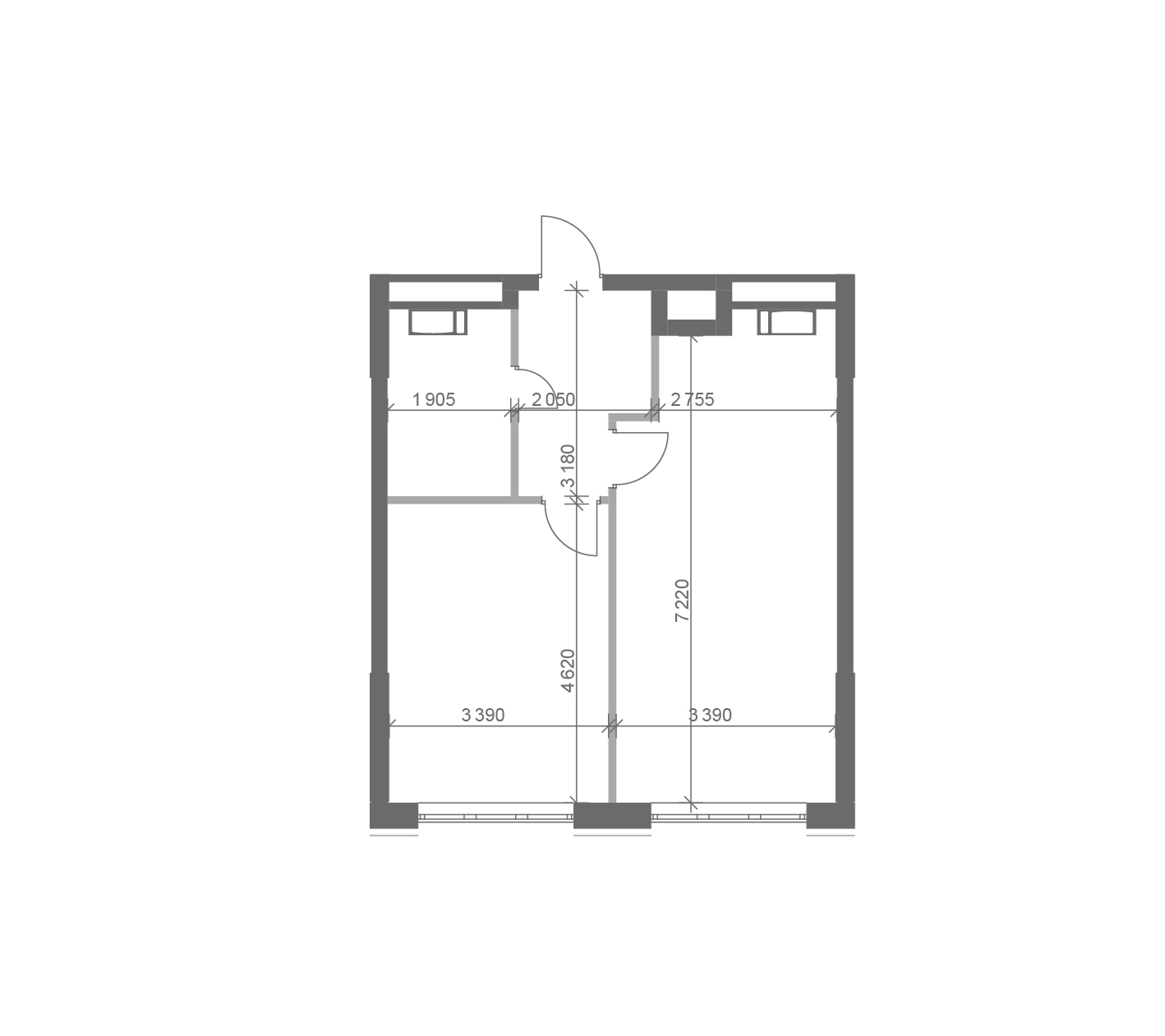
Общая площадь:
50.6 м2
Жилая площадь:
15.2 м2
Секция
1
Этаж:
10
S1-1-10-153 квартира

№ 153

1.  Коридор: 5.98 м2
2.  Кухня: 24.81 м2
3.  Спальня: 15.24 м2
4.  Сан. узел: 4.58 м2
Загрузить PDF- файл

Узнать цену

    Надіслати

    Спасибо за Ваше сообщение!

    Наш мэнеджер с Вами свяжется