Загальна площа:
209.5 м2
Житлова площа:
116.43 м2
Секція
1
Поверх:
23
S1-5-23-322 квартира

№ 322

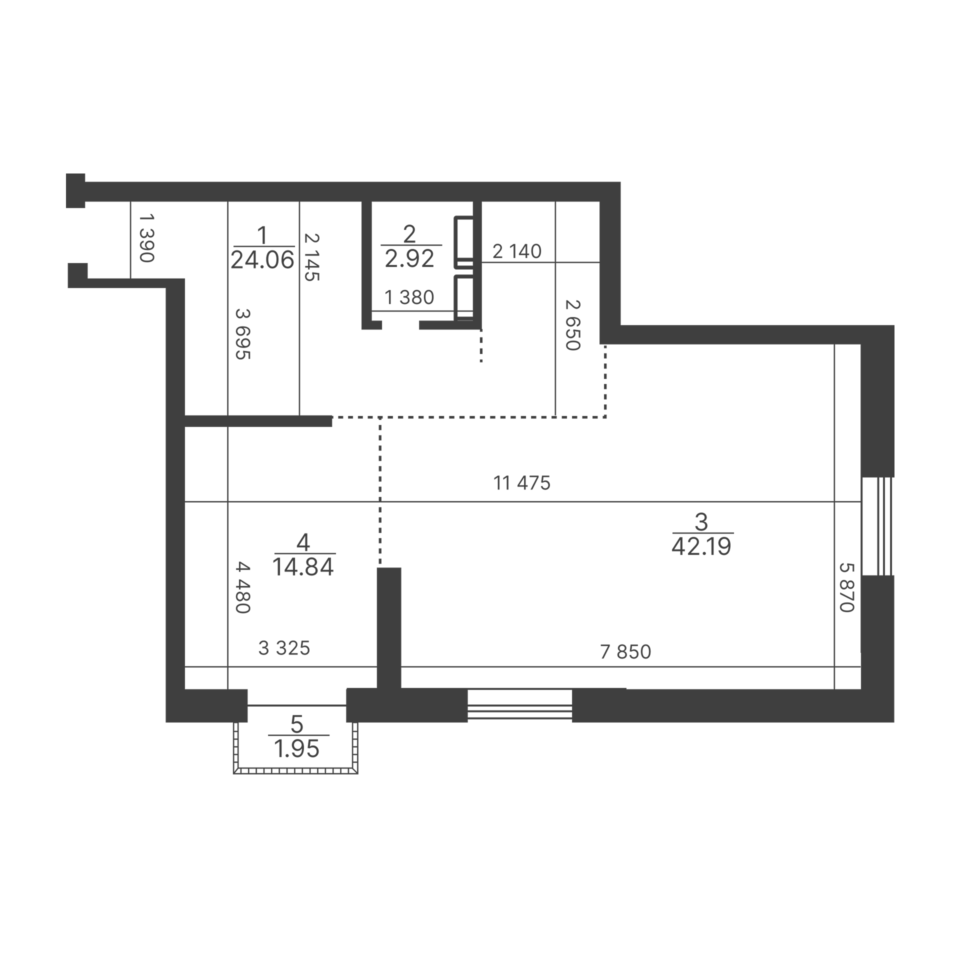
1.  Рівень 1: 85.96 м2
2.  Житлова площа: 42.19 м2
3.  Коридор: 24.6 м2
4.  Санвузол: 2.92 м2
5.  Кімната - 1: 42.19 м2
6.  Кухня-вітальня: 14.84 м2
7.  Еркер: 1.95 м2
8.  Рівень 2: 97.02 м2
9.  Житлова площа: 74.24 м2
10.  Коридор: 7.23 м2
11.  Кімната - 1: 18.06 м2
12.  Еркер: 1.95 м2
13.  Кімната - 2: 18.90 м2
14.  Кімната - 3: 17.44 м2
15.  Еркер: 1.95 м2
16.  Кімната - 4: 17.84 м2
17.  Санвузол - 1: 6.33 м2
18.  Санвузол - 2: 5.32 м2
19.  Рівень 3: 84.28 м2
20.  Сходи: 1.74 м2
21.  Тераса: 82.53 м2
Завантажити PDF- файл

Дізнатись ціну

    Надіслати

    Дякуємо за Ваше повідомлення

    Наш менеджер зателефонує Вам