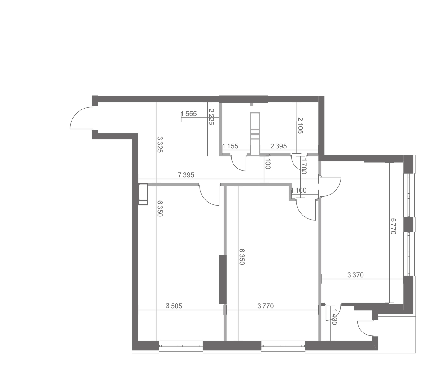
Загальна площа:
93.6 м2
Житлова площа:
46.2 м2
Секція
1
Поверх:
7
S1-2-7-95 квартира

№ 95

1.  Коридор: 15.27 м2
2.  Гардеробна: 3.4 м2
3.  Сан. вузол - 1: 2.36 м2
4.  Сан. вузол - 2: 4.9 м2
5.  Кімната - 1: 22.97 м2
6.  Кімната - 2: 23.16 м2
7.  Кухня-вітальня: 21.50 м2
Завантажити PDF- файл

Дізнатись ціну

    Надіслати

    Дякуємо за Ваше повідомлення

    Наш менеджер зателефонує Вам