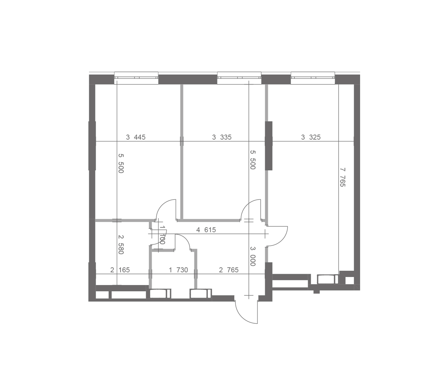
Загальна площа:
82.7 м2
Житлова площа:
37.1 м2
Секція
1
Поверх:
12
S1-2-12-174 квартира

№ 174

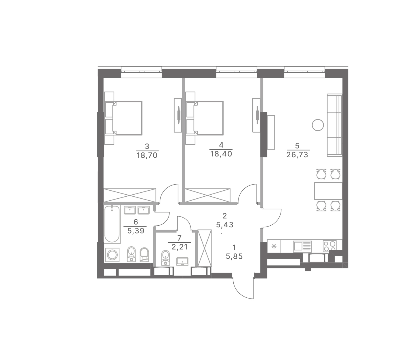
1.  Коридор: 5.43 м2
2.  Гардероб: 5.85 м2
3.  Кімната - 1: 18.70 м2
4.  Кімната - 2: 18.40 м2
5.  Кухня-вітальня: 26.73 м2
6.  Сан. вузол - 1: 5.39 м2
7.  Сан. вузол - 2: 2.21 м2
Завантажити PDF- файл

Дізнатись ціну

    Надіслати

    Дякуємо за Ваше повідомлення

    Наш менеджер зателефонує Вам