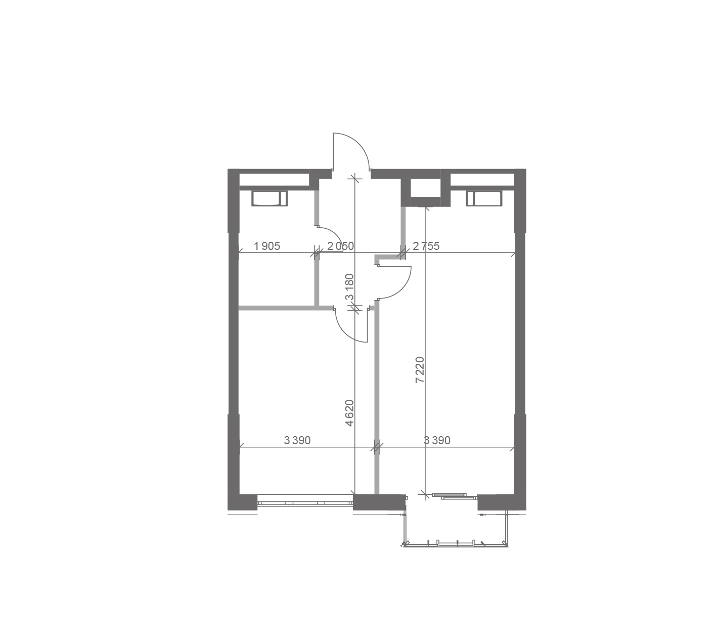
Загальна площа:
52.50 м2
Житлова площа:
15.73 м2
Секція
1
Поверх:
11
S1-1-11-167 квартира

№ 167

1.  Спальня: 15.73 м2
2.  Кухня: 26.09 м2
3.  Коридор: 5.68 м2
4.  Сан. вузол: 5.00 м2
Завантажити PDF- файл

Дізнатись ціну

    Надіслати

    Дякуємо за Ваше повідомлення

    Наш менеджер зателефонує Вам