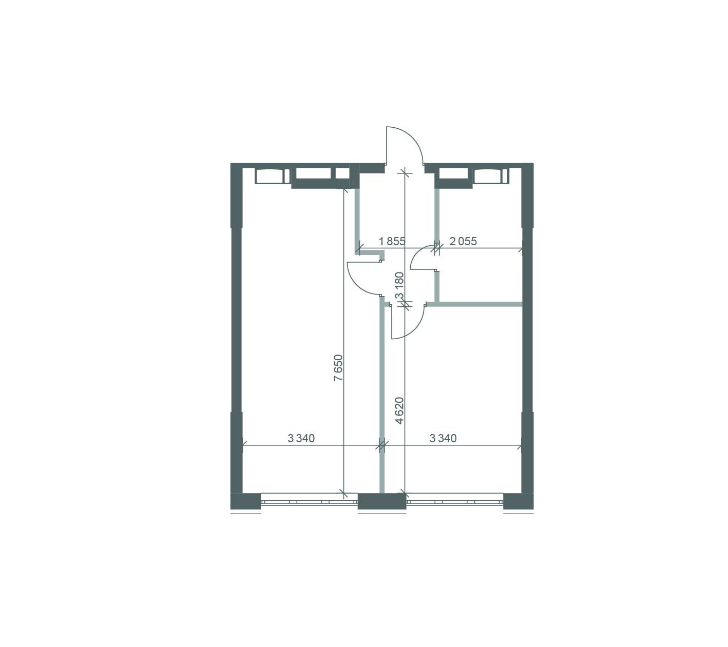
Загальна площа:
51.10 м2
Житлова площа:
15.63 м2
Секція
1
Поверх:
1
S1-1-1-1 квартира

№ 1

1.  Спальня: 15.63 м2
2.  Кухня: 24.65 м2
3.  Коридор: 5.11 м2
4.  Сан. вузол: 5.81 м2
Завантажити PDF- файл

Дізнатись ціну

    Надіслати

    Дякуємо за Ваше повідомлення

    Наш менеджер зателефонує Вам